Réaménagement de l’Avenue Georges Henri : une enquête publique en cours
Depuis plusieurs années, l’exécutif communal tente de redynamiser l’avenue Georges Henri et son offre commerciale via le rachat et la rénovation d’immeuble ainsi que la création de primes. Aujourd’hui, et après plusieurs réunions publique, la commune propose le réaménagement de la voirie de façade à façade.
Cependant, combiner l’attractivité commerciale, le logement, la circulation des bus et l’ajout de plantations reste complexe dans une voirie aussi étroite.
Une enquête publique est actuellement en cours : c’est le moment pour les habitants, commerçants et usagers de s’informer et de faire entendre leur avis.
Pourquoi cette page ?
Au travers de cette page, nous souhaitons vous aider à :
- comprendre les éléments essentiels du projet,
- accéder facilement au dossier complet,
- savoir comment réagir à l’enquête publique,
- prendre connaissance de notre analyse.
Agir maintenant !
Le projet en bref
-
Le périmètre
Le projet concerne l’avenue Georges Henri à partir du carrefour avec le boulevard Brand Whitlock jusqu’au square Meudon non-inclus.
Il s’agit d’un réaménagement de « façade à façade », c’est à dire de l’ensemble de la voirie: trottoirs, chaussée, stationnement, espaces verts et mobilier urbain.
Le réaménagement comprend également le square Degrooff ainsi que le pourtour de la Métairie Van Meyel.

Les objectifs
- Améliorer le confort et la sécurité
- élargir les trottoirs,
- faciliter les déplacements à pieds,
- mieux intégrer les transports en commun.
- Répondre aux enjeux environnementaux
- augmenter la végétalisation,
- améliorer la gestion des eaux de pluie,
- lutter contre les ilots de chaleur.
- Renforcer l’attractivité de l’avenue
- soutenir les commerces de proximités,
- améliorer la qualité de l’espace public,
- créer des lieux plus conviviaux.
Quelques chiffres clés
Le périmètre du projet de réaménagement de l’avenue Georges Henri c’est actuellement :
- environs 200 commerces le long de l’avenue
- 50% des déplacements vers les commerces se font à pied
- 28% des déplacements vers les commerces en transport en commun
- 15% des déplacements vers les commerces se font en voiture
- 5% des déplacements vers les commerces se font à vélo
- 14 664m² de superficie dont 14 133m² imperméable
- 22 arbres à haute tige
- 126 emplacements de stationnement automobile dont 1 pour les PMR
- 71 emplacements de stationnement vélo
Les grandes orientations du projet
Sur tout le périmètre, le projet prévoit une nouvelle répartition de l’espace via :
- du stationnement alterné d’un côté puis de l’autre de la voirie (en fonction des tronçons),
- une largeur de trottoir côté stationnement allant de 1,7m à 3,7m ponctuellement,
- des trottoirs de 2m de large du côté sans stationnement,
- une chaussée élargie à 6,30m pour faciliter le passage des bus,
- l’intégration des zones de livraison avec un léger agrandissement,
- la plantation d’arbres supplémentaire et de zone végétalisée là où c’est possible,
- l’utilisation d’un revêtement semi-perméable sous les zones de stationnement,
- la sécurisation des carrefours et des traversées
Le projet en détails
-
Du square Meudon jusqu’au carrefour de la rue du Menuisier
Ce tronçons marque l’entrée de l’avenue par le square Meudon qui n’est pas repris dans le périmètre du projet.
On y retrouve le profil type de l’avenue, tel que décrit dans les orientations du projet.
La présence d’arbres et de leurs fosses sur le côté pair pour marquer le début des zones de stationnement.
La mise en trottoir traversant (de plein pied) de la traversée de la rue J.B. Timmermans avec la plantation de deux arbres à l’entrée de cette dernière.
La plantation de deux arbres au niveau de l’entrée de la rue du Menuisier.
On notera que le stationnement à changer de côté par rapport à la situation actuelle.
-
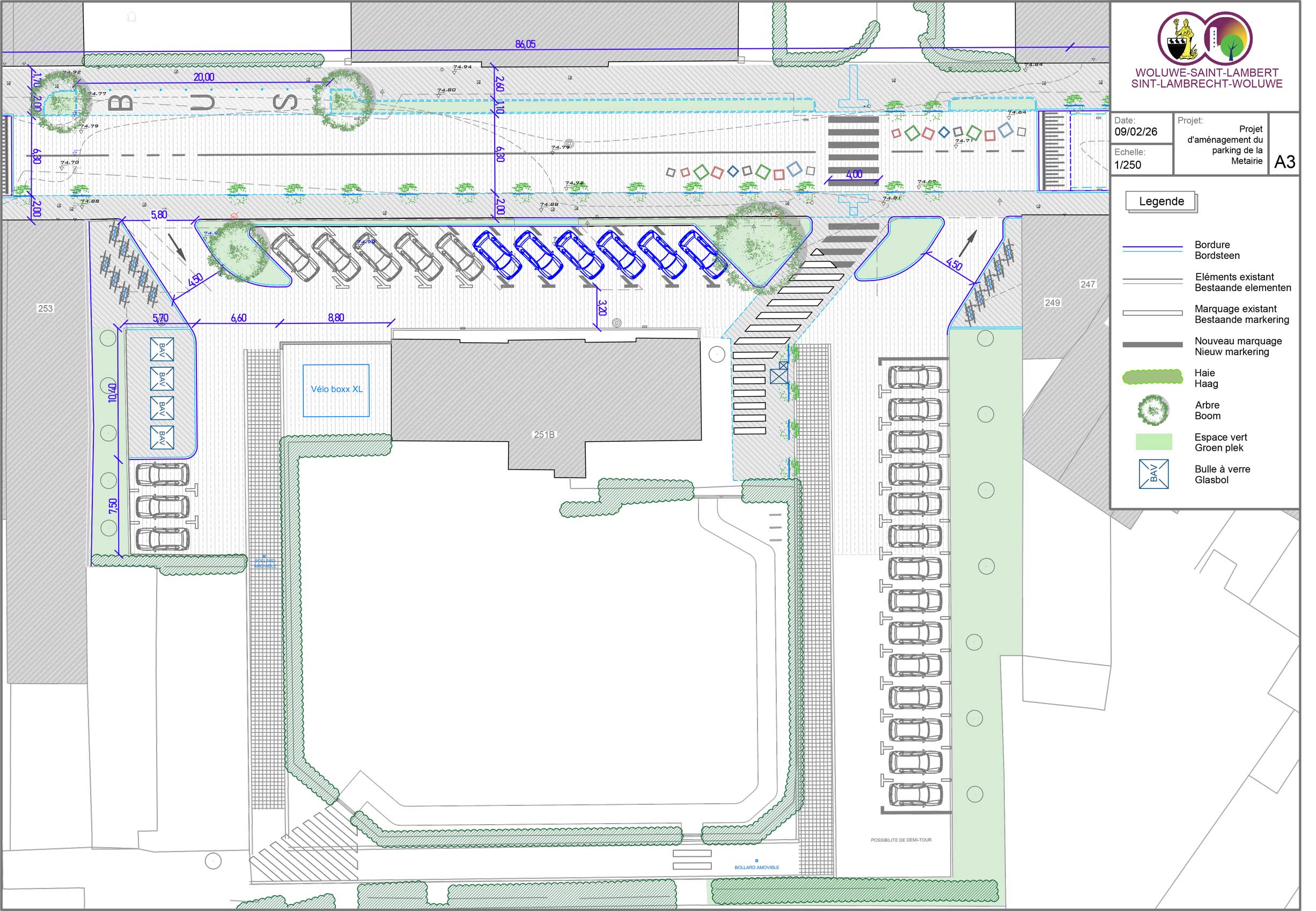
La Métairie Van Meyel
Les abords de la métairie Van Meyel et de l’école du même nom profite d’un traitement particulier.
La voirie est surélevée à cette endroit pour former un plateau devant l’école et des éléments décoratifs sont ajoutés pour bien signaler aux automobilistes qu’ils sont dans une zone à risque. Le trottoir devant l’entrée de l’école est porté ponctuellement à 3,70m. Une bande de pleine terre est également présente pour améliorer la visibilité des piétons et embellir l’espace.
En face, dans les abords de la Métairie, les changements sont plus nombreux:
- l’entrée unique au parking fait place à deux accès distincts, une entrée et une sortie,
- la circulation ne peux plus faire le tour de la métairie par l’arrière,
- le fritkot disparaît au profit de la création de la sortie du parking,
- des bulles à verres enterrées sont installées,
- un box vélo de 20 places pour les riverains est créé,
- 28 emplacements de stationnement sont conservés sur 36.
-
De la Métairie au square Degrooff
Après les aménagement plus spécifiques aux abords de la Métairie, nous retournons sur le profil « typique » de la voirie.
Le stationnement reste du côté pair et est également signaler par un arbre et sa fosse.
Le carrefour avec la rue du Pont-Levis et le rue du Bois de Linthout sera modifié avec la création d’un passage surélevé pour les traversées piétonne parallèle à l’avenue Georges Henri. Les entrées des deux rues perpendiculaires profiteront également de la plantation de deux arbres.
-
Le square Degrooff
Le square Degrooff et ses abords bénéficieront également d’un traitement spécifique.
Devant l’Institut Royal des Sourds et Muets le trottoir oscille entre 3,7m et 2m. La voirie dispose de marquages spécifiques, comme devant l’école Van Meyel, pour souligner l’apaisement du tronçons. Il n’a pas été retenue de créer un plateau comme devant l’école Van Meyel pour conserver une différences de niveaux indispensable pour le repérage dans l’espaces des malvoyants.
En face, par contre, le square Degrooff devient un espace de plein pied tout en conservant la possibilité de faire demi-tour. Il est végétalisé et abrite en sont centre une placette qui facilitera l’organisation d’évènements. Le stationnement est par contre réduit à 4 emplacements contre 17 actuellement.
Gestion des eaux de pluie sur le square
Aux abords du square, 700m de voirie seront déconnectées du réseau d’égouttage. Les eaux de pluies seront dirigées, grâce à la pente naturelle et un drain, vers une noue paysagère et sous le square Degrooff où elle pourra progressivement s’infiltrer.
Le volume de stockage prévu est de 21m³ ce qui devrait pouvoir prendre en charge une pluie centennal d’une durée de 30minutes.
-
Du square Degrooff au boulevard Brand Whiltlock
Juste après le square Degrooff, la voirie retrouve sont profil « typique » avec :
- le stationnement alterné,
- les fosses d’arbres pour délimiter les zones de stationnement,
- les largeurs de trottoir de 2m du côté sans stationnement et de 17,m à 3,7m du côté du stationnement.
Les carrefours avec l’avenue Prekelinden et l’avenue Prince Héritier sont traité de manière plus classique, sans ajout de passage surélevé ni d’arbre contrairement au carrefours précédents. Le carrefour avec le boulevard Band Whitlock, ne fait pas parti du périmètre du projet.
Le résumé en chiffres
| Aménagement | Existant | Projeté | Différence |
|---|---|---|---|
| Superficie totale | 14.664 m² | 14.664 m² | 0 m² |
| Pleine terre | 533 m² | 895 m² | +362 m² |
| Semi-perméable | 0 m² | 750 m² | +750 m² |
| Imperméable | 14.133 m² | 13.019 m² | -1.114 m² |
| Taux d’imperméabilisation | 96 % | 89 % | -7 points |
| Nombre d’arbres à haute tige | 22 | 55 | +33 |
| Stationnement total (voiture) | 126 | 83 | -43 |
| PMR | 1 | 4 | +3 |
| Vélo | 71 | 112 | +41 |
| Zone de livraison | 54 m | 60 m | +6 m |
| Trottoir | 4.410 m² | 4.684 m² | +274 m² |
| Point lumineux | 48 | 48 | 0 |
Comment réagir à l’enquête publique ?
L’enquête publique permet à chaque habitant, commerçant ou usager de prendre connaissance du projet et d’exprimer un avis.
Elle se déroule du mercredi 8 avril au jeudi 7 mai 2026. Vos remarques et observations doivent être déposées dans ce délais.
-
Consulter le dossier
Le dossier complet est disponible via la plateforme régionale Openpermits
Vous pouvez également le consulter directement au Service Urbanisme de la Commune:
au WTC, Chaussée de Stockel, 80 – 1er étage
Le mercredi entre 9h00 et 12h00 ou sur rendez-vous au 02 761 28 14
-
Donnez son avis
Vous pouvez transmettre vos observations et remarques:
-
- par courrier : adressé au Collège des Bourgmestre et Echevins, Avenue Paul Hymans, 2 – 1200 Woluwe-Saint-Lambert
- par email : a l’adresse ep.oo@woluwe1200.be
- via le formulaire en ligne sur la plateforme Openpermits
N’oubliez pas de signaler dans votre courrier si vous souhaitez être convoqué à la commission de concertation du 22 mai 2026 qui traitera du dossier.
C’est cette commission qui analysera le dossier et vos remarques afin de remettre un avis sur la demande de permis.
L’avis de Wolu-Inter-Quartiers
Notre association analyse le dossier. Notre avis sera disponible bientôt.






